| Товар | Цена | Всего |
|---|
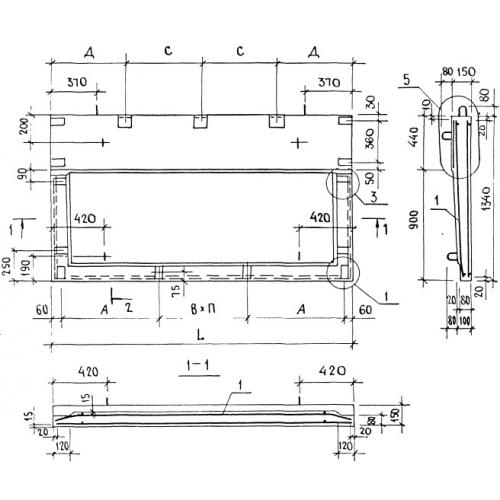
| Длина,мм: | 2390 |
|---|---|
| Ширина,мм: | 1340 |
| Высота,мм: | 150 |
| Масса, кг: | 950 |
| Геометрический объём,м3: | 0,48 |
| Объём бетона, м3: | 0,38 |
| Марка бетона на прочность: | М200 |
| ГОСТ, Серия: | Серия 1.137.1-9 |
Балконные плиты ПБК 24-13-6 а применяют в жилом и гражданском строительстве крупноблочных и кирпичных зданий. Открытые поверхности закладных изделий плит балконов должны иметь цинковое покрытие и покрытие цементным раствором. Допускается эксплуатация ЖБИ данного типа в нормальных физико-геологических условиях II и III климатических регионов, а также 18 климатического подрайона.
Маркировка:
1. ПБК – плита балконная консольная;
2. 24 – координационная длина, указанная в дециметрах и записанная с округлением до целого числа для удобства чтения;
3. 13 – номинальная ширина платформы, в дц;
4. 6 – допустимая толщина стен, данная группа указывается для крупноблочных стен толщиной 600 мм и кирпичных стен толщиной 640 мм;
5. а – кирпичные стены.
