| Товар | Цена | Всего |
|---|
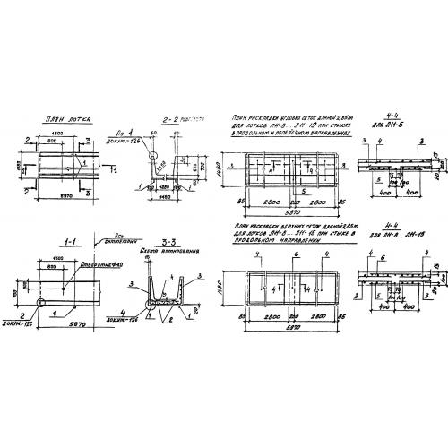
| Длина,мм: | 5970 |
|---|---|
| Ширина,мм: | 1480 |
| Высота,мм: | 700 |
| Масса, кг: | 3600 |
| Геометрический объём,м3: | 6,185 |
| Объём бетона, м3: | 1,44 |
| Марка бетона на прочность: | М350 |
| ГОСТ, Серия: | Серия 3.006.1-2/87 |
Лотки теплотрасс - изделие дорожного, мостового и промышленного строительства. Их использование позволяет защитить инженерные коммуникации от механических воздействий.
Маркировка:
1. Л - вид изделия - лоток;
2. 11 - порядковый номер изделия;
3. 8 - вертикально равномерно - распределенная эквивалентная расчётная нагрузка (тс/м2).
