| Товар | Цена | Всего |
|---|
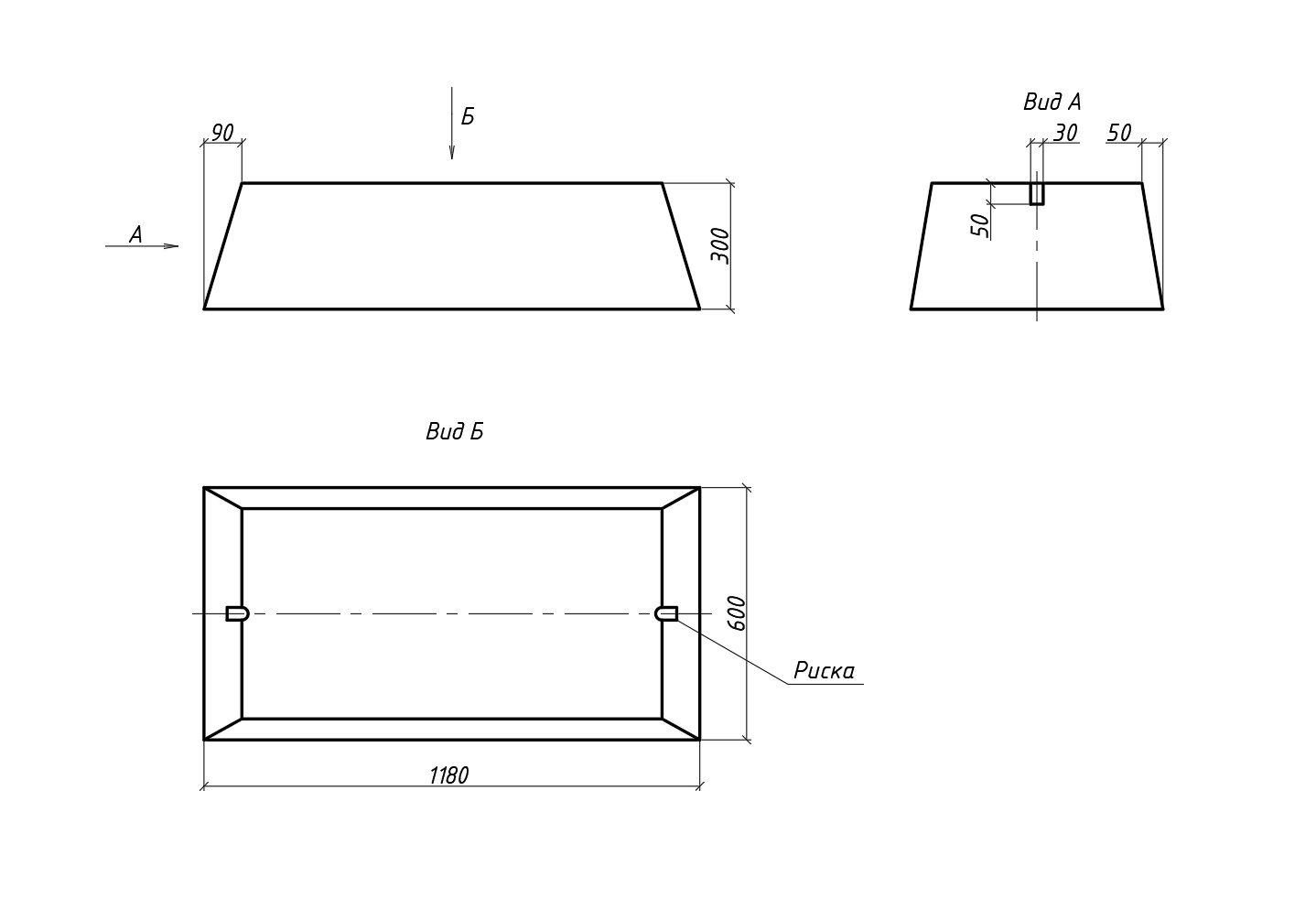
| Длина,мм: | 1180 |
|---|---|
| Ширина,мм: | 600 |
| Высота,мм: | 300 |
| Масса, кг: | 450 |
| Геометрический объём,м3: | 0,18 |
| Объём бетона, м3: | 0,18 |
| Марка бетона на прочность: | М150 |
| ГОСТ, Серия: | ГОСТ 13580-85 |
Фундаментные железобетонные подушки ФЛ представляют собой трапецеидальные армированные изделия, изготовленные на базе тяжелого бетона, укрепленного сетчатым каркасом. Железобетонные подложки оптимизируют статическую и динамическую нагрузку на нижнюю часть ленточного фундамента. Благодаря трапецеидальной форме и наличию широкого основания снижается давление здания на грунт.
Маркировка:
1. ФЛ - тип изделия - фундамент ленточный;
2. 6 - ширина (дм);
3. 12 - длина (дм);
4. 4 - номер группы по несущей способности.
